Maak kennis
info@cruysconsultants.nl
06-30455111
Home
Cruys Consultants
Diensten
Advies
Ontwerp en inrichting
Subsidie
Projecten
Contact
Home
Cruys Consultants
Diensten
Advies
Ontwerp en inrichting
Subsidie
Projecten
Contact
Geïnteresseerd?
Neem contact op
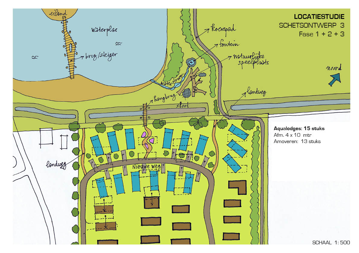
Camping Veld, Rheeze
Ontwikkeling recreatielodges aan westzijde van de camping bij de vijver.