Geïnteresseerd?

Neem contact op

Camping De Molenhof, Reutum

Quickscan over diverse aspecten van camping De Molenhof

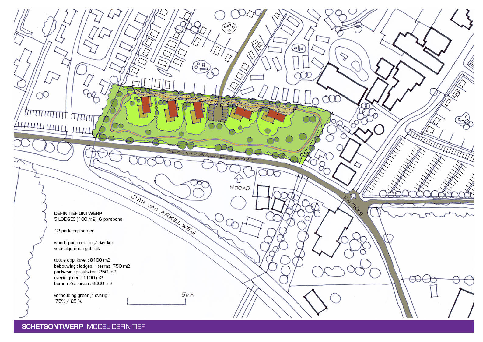
Ruimtelijke kijk over de gehele camping De Molenhof betreffende herinrichtingsmogelijkheden entree, parkeren en diverse campingvelden.